小料理屋居抜き

物件ポイント

小料理屋居抜き!大井町駅最寄りの内装がきれいな小箱物件出ました!カウンター7席でワンオペ可能!

造作物あり / 造作費100,000円

物件概要

物件No. No.31054
現況 小料理屋居抜き
所在地 東京都品川区大井三丁目
最寄り駅 JR京浜東北線「大井町」徒歩11分  
賃料 165,000円
管理費 0円
広さ 6.07坪
所在階 1階
初期費用 1,103,200円
※別途火災保険に加入して頂きます ※金額は前家賃入居日により異なり多少前後します。
※上記初期費用は「前家賃(賃料の1ケ月分)」+「保証金又は敷金」+「礼金」+「仲介手数料」+「造作譲渡代」の合計になります。
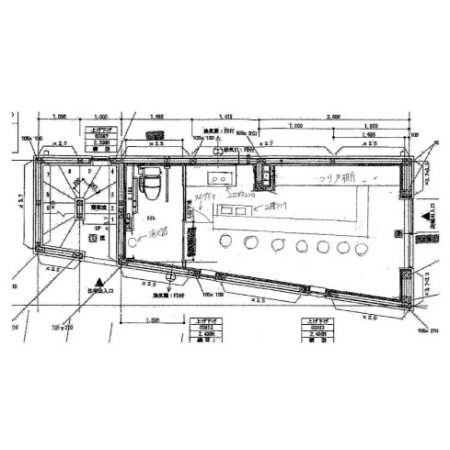
  • 図面
  • 画像1

画像2 画像3 画像4 画像5 画像6 画像7 画像8 画像9

保証金 2ヶ月
礼金 2ケ月
敷金
償却 2ヶ月
構造 木造
契約期間 3年間
建物階数 地上2階建て
入居日 相談
駐車場  
駐車場料金等
設備
備考 東京都の居抜き物件検索サイトは

サイト名 ≪居抜き物件サーチ≫で→《検索》 http://inuki-forrent.net/

毎日新着物件を掲載!情報量満載です! 

東京都を中心に居抜き物件の情報を豊富に掲載!

知識のある専門スタッフが新規開業・店舗売却のサポートをさせて頂きます!

また、 店舗専門内装業者・厨房専門業者・看板業者・酒屋・ポスレジ等、

信頼の出来る業者も紹介しております。

アクセスマップ

会員の方は地図が閲覧できます

お電話

お電話でのお問い合わせ

03-5428-6651

受付時間 / 10:00〜18:00
土日・祝定休

メール

メールでのお問い合わせ

お問い合わせフォーム

pagetop